Alle Studentenwohnungen im Überblick
Du bist auf der Suche nach einer Alternative zum klassischen Studentenwohnheim? Die 72 komplett möblierten Apartments in der Gustav-Schwab-Straße sind perfekt für Studierende und Schüler. Sie bieten barrierefreien Zugang dank eines Aufzugs und verfügen über eine eigene Terrasse oder einen Balkon, eine praktische Küchenzeile und ein modernes Bad. Auf jeder Etage stehen Gemeinschaftsräume zur Verfügung, darunter ein Gemeinschaftsraum im Erdgeschoss, eine Leseecke im 1. Obergeschoss und Lern-/Seminarräume in den Etagen 2 und 3. Im Untergeschoss gibt es für jedes Apartment ein abschließbares Kellerabteil, und im Erdgeschoss steht ein Waschraum mit Waschmaschinen und Trocknern zur Verfügung.
Zu vereinzelten Apartments gehört ein Autoabstellplatz im Freien (zzgl. monatliche Miete ab 25 EUR).
Darüber hinaus genießen die Bewohner den Komfort, ihre bestellten Pakete bequem an der hauseigenen Paketbox-Anlage in Empfang zu nehmen und wieder zurückzusenden! Wie das funktioniert erfährst du hier im Erklärvideo.
Nutze die Möglichkeit zu einem virtuellen 360°-Rundgang.
Apartment-Typen
Apartment Typ Student
69 Apartments mit ca. 22 m2 Wohnfläche und Terrasse bzw. Balkon.
Hier Verfügbarkeiten prüfen!
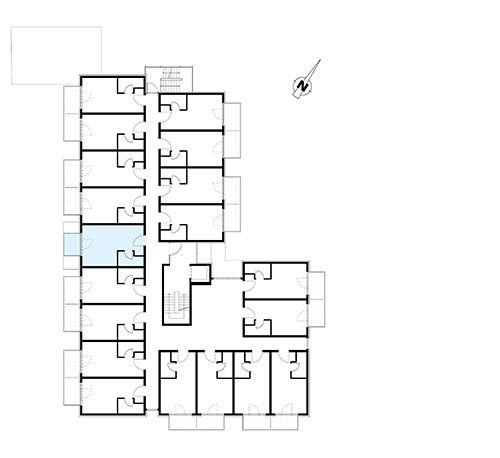
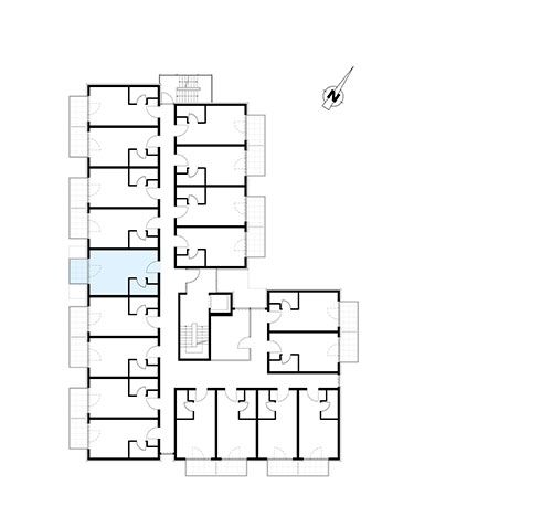
Info-Kasten erscheint bei Klick auf die Apartments. Wenn das Frei-Symbol erscheint, direkt auf den Link im Info-Kasten klicken und anfragen, ist das Apartment vermietet oder demnächst frei, klicke auf den Link "Auf die Warteliste", um dich für das Apartment vormerken zu lassen.



-
-
ERDGESCHOSS - Apartment 5
21,75 m²
Warmmiete 670 Euro
» Auf die Warteliste
-
-
-
ERDGESCHOSS - Apartment 6
21,75 m²
Warmmiete 670 Euro zzgl. Stellplatz
» Auf die Warteliste
-
-
-
ERDGESCHOSS - Apartment 7
21,75 m²
Warmmiete 670 Euro zzgl. Stellplatz
» Auf die Warteliste
-
-
-
ERDGESCHOSS - Apartment 8
21,75 m²
Warmmiete 670 Euro
» Auf die Warteliste
-
-
-
ERDGESCHOSS - Apartment 9
21,75 m²
Warmmiete 670 Euro zzgl. Stellplatz
» Auf die Warteliste
-
-
-
ERDGESCHOSS - Apartment 10
21,75 m²
Warmmiete 670 Euro
» Auf die Warteliste
-
-
-
ERDGESCHOSS - Apartment 11
21,75 m²
Warmmiete 670 Euro zzgl. Stellplatz
» Auf die Warteliste
-
-
-
ERDGESCHOSS - Apartment 12
21,75 m²
Warmmiete 670 Euro zzgl. Stellplatz
» Auf die Warteliste
-
-
-
ERDGESCHOSS - Apartment 4
21,75 m²
Warmmiete 670 Euro
» Auf die Warteliste
-
-
-
ERDGESCHOSS - Apartment 3
21,75 m²
Warmmiete 670 Euro
» Auf die Warteliste
-
-
-
ERDGESCHOSS - Apartment 2
21,75 m²
Warmmiete 670 Euro
» Auf die Warteliste
-
-
-
ERDGESCHOSS - Apartment 1
21,75 m²
Warmmiete 670 Euro
» Auf die Warteliste
-
-
-
ERDGESCHOSS - Apartment 13
frei ab 01.10.2025
21,75 m²
Warmmiete 670 Euro
» Jetzt anfragen
-
-
-
ERDGESCHOSS - Apartment 14
21,75 m²
Warmmiete 670 Euro
» Auf die Warteliste
-
-
-
ERDGESCHOSS - Apartment 15
21,75 m²
Warmmiete 670 Euro
» Auf die Warteliste
-

-
-
OBERGESCHOSS 1 - Apartment 20
21,75 m²
Warmmiete 680 Euro
» Auf die Warteliste
-
-
-
OBERGESCHOSS 1 - Apartment 21
21,75 m²
Warmmiete 680 Euro
» Auf die Warteliste
-
-
-
OBERGESCHOSS 1 - Apartment 22
21,75 m²
Warmmiete 680 Euro zzgl. Stellplatz
» Auf die Warteliste
-
-
-
OBERGESCHOSS 1 - Apartment 23
21,75 m²
Warmmiete 680 Euro
» Auf die Warteliste
-
-
-
OBERGESCHOSS 1 - Apartment 25
21,75 m²
Warmmiete 680 Euro
» Auf die Warteliste
-
-
-
OBERGESCHOSS 1 - Apartment 26
21,75 m²
Warmmiete 680 Euro
» Auf die Warteliste
-
-
-
OBERGESCHOSS 1 - Apartment 27
21,75 m²
Warmmiete 680 Euro
» Auf die Warteliste
-
-
-
OBERGESCHOSS 1 - Apartment 28
21,75 m²
Warmmiete 680 Euro zzgl. Stellplatz
» Auf die Warteliste
-
-
-
OBERGESCHOSS 1 - Apartment 19
21,75 m²
Warmmiete 680 Euro
» Auf die Warteliste
-
-
-
OBERGESCHOSS 1 - Apartment 18
21,75 m²
Warmmiete 680 Euro
» Auf die Warteliste
-
-
-
OBERGESCHOSS 1 - Apartment 17
21,75 m²
Warmmiete 680 Euro
» Auf die Warteliste
-
-
-
OBERGESCHOSS 1 - Apartment 16
21,75 m²
Warmmiete 680 Euro
» Auf die Warteliste
-
-
-
OBERGESCHOSS 1 - Apartment 29
21,75 m²
Warmmiete 680 Euro
» Auf die Warteliste
-
-
-
OBERGESCHOSS 1 - Apartment 30
21,75 m²
Warmmiete 680 Euro
» Auf die Warteliste
-
-
-
OBERGESCHOSS 1 - Apartment 31
21,75 m²
Warmmiete 680 Euro
» Auf die Warteliste
-
-
-
OBERGESCHOSS 1 - Apartment 32
21,75 m²
Warmmiete 680 Euro
» Auf die Warteliste
-
-
-
OBERGESCHOSS 1 - Apartment 34
21,75 m²
Warmmiete 680 Euro zzgl. Stellplatz
» Auf die Warteliste
-
-
-
OBERGESCHOSS 1 - Apartment 33
21,75 m²
Warmmiete 680 Euro zzgl. Stellplatz
» Auf die Warteliste
-

-
-
OBERGESCHOSS 2 - Apartment 39
21,75 m²
Warmmiete 690 Euro
» Auf die Warteliste
-
-
-
OBERGESCHOSS 2 - Apartment 40
21,75 m²
Warmmiete 690 Euro zzgl. Stellplatz
» Auf die Warteliste
-
-
-
OBERGESCHOSS 2 - Apartment 41
21,75 m²
Warmmiete 690 Euro
» Auf die Warteliste
-
-
-
OBERGESCHOSS 2 - Apartment 42
21,75 m²
Warmmiete 690 Euro
» Auf die Warteliste
-
-
-
OBERGESCHOSS 2 - Apartment 44
21,75 m²
Warmmiete 690 Euro
» Auf die Warteliste
-
-
-
OBERGESCHOSS 2 - Apartment 45
21,75 m²
Warmmiete 690 Euro
» Auf die Warteliste
-
-
-
OBERGESCHOSS 2 - Apartment 46
21,75 m²
Warmmiete 690 Euro
» Auf die Warteliste
-
-
-
OBERGESCHOSS 2 - Apartment 47
21,75 m²
Warmmiete 690 Euro
» Auf die Warteliste
-
-
-
OBERGESCHOSS 2 - Apartment 38
21,75 m²
Warmmiete 690 Euro
» Auf die Warteliste
-
-
-
OBERGESCHOSS 2 - Apartment 37
21,75 m²
Warmmiete 690 Euro zzgl. Stellplatz
» Auf die Warteliste
-
-
-
OBERGESCHOSS 2 - Apartment 36
21,75 m²
Warmmiete 690 Euro
» Auf die Warteliste
-
-
-
OBERGESCHOSS 2 - Apartment 35
21,75 m²
Warmmiete 690 Euro
» Auf die Warteliste
-
-
-
OBERGESCHOSS 2 - Apartment 48
21,75 m²
Warmmiete 690 Euro
» Auf die Warteliste
-
-
-
OBERGESCHOSS 2 - Apartment 49
21,75 m²
Warmmiete 690 Euro zzgl. Stellplatz
» Auf die Warteliste
-
-
-
OBERGESCHOSS 2 - Apartment 50
21,75 m²
Warmmiete 690 Euro
» Auf die Warteliste
-
-
-
OBERGESCHOSS 2 - Apartment 51
21,75 m²
Warmmiete 690 Euro
» Auf die Warteliste
-
-
-
OBERGESCHOSS 2 - Apartment 53
21,75 m²
Warmmiete 690 Euro zzgl. Stellplatz
» Auf die Warteliste
-
-
-
OBERGESCHOSS 2 - Apartment 52
21,75 m²
Warmmiete 690 Euro
» Auf die Warteliste
-

-
-
OBERGESCHOSS 3 - Apartment 58
21,75 m²
Warmmiete 710 Euro zzgl. Stellplatz
» Auf die Warteliste
-
-
-
OBERGESCHOSS 3 - Apartment 59
21,75 m²
Warmmiete 710 Euro
» Auf die Warteliste
-
-
-
OBERGESCHOSS 3 - Apartment 60
21,75 m²
Warmmiete 710 Euro zzgl. Stellplatz
» Auf die Warteliste
-
-
-
OBERGESCHOSS 3 - Apartment 61
21,75 m²
Warmmiete 710 Euro
» Auf die Warteliste
-
-
-
OBERGESCHOSS 3 - Apartment 63
21,75 m²
Warmmiete 710 Euro
» Auf die Warteliste
-
-
-
OBERGESCHOSS 3 - Apartment 64
21,75 m²
Warmmiete 710 Euro
» Auf die Warteliste
-
-
-
OBERGESCHOSS 3 - Apartment 65
21,75 m²
Warmmiete 710 Euro
» Auf die Warteliste
-
-
-
OBERGESCHOSS 3 - Apartment 66
21,75 m²
Warmmiete 710 Euro
» Auf die Warteliste
-
-
-
OBERGESCHOSS 3 - Apartment 57
21,75 m²
Warmmiete 710 Euro
» Auf die Warteliste
-
-
-
OBERGESCHOSS 3 - Apartment 56
21,75 m²
Warmmiete 710 Euro
» Auf die Warteliste
-
-
-
OBERGESCHOSS 3 - Apartment 55
21,75 m²
Warmmiete 710 Euro
» Auf die Warteliste
-
-
-
OBERGESCHOSS 3 - Apartment 54
21,75 m²
Warmmiete 710 Euro zzgl. Stellplatz
» Auf die Warteliste
-
-
-
OBERGESCHOSS 3 - Apartment 67
21,75 m²
Warmmiete 710 Euro zzgl. Stellplatz
» Auf die Warteliste
-
-
-
OBERGESCHOSS 3 - Apartment 68
21,75 m²
Warmmiete 710 Euro
» Auf die Warteliste
-
-
-
OBERGESCHOSS 3 - Apartment 69
21,75 m²
Warmmiete 710 Euro
» Auf die Warteliste
-
-
-
OBERGESCHOSS 3 - Apartment 70
21,75 m²
Warmmiete 710 Euro
» Auf die Warteliste
-
-
-
OBERGESCHOSS 3 - Apartment 72
21,75 m²
Warmmiete 710 Euro
» Auf die Warteliste
-
-
-
OBERGESCHOSS 3 - Apartment 71
21,75 m²
Warmmiete 710 Euro zzgl. Stellplatz
» Auf die Warteliste
-

Apartment Typ Student Plus
Drei Apartments mit ca. 25 m2 Wohnfläche und Balkon.
Hier Verfügbarkeiten prüfen!
Wenn das Frei-Symbol erscheint, direkt auf den Link im Info-Kasten klicken und anfragen, ist das Apartment vermietet oder demnächst frei, klicken Sie auf den Link "Auf die Warteliste", um sich für das Apartment vormerken zu lassen.



-
-
OBERGESCHOSS 1 - Apartment 24
25,43 m²
Warmmiete 720 Euro zzgl. Stellplatz
» Auf die Warteliste
-

-
-
OBERGESCHOSS 2 - Apartment 43
25,43 m²
Warmmiete 740 Euro
» Auf die Warteliste
-

-
-
OBERGESCHOSS 3 - Apartment 62
25,43 m²
Warmmiete 740 Euro
» Auf die Warteliste
-

Ausstattungsmerkmale
- Bett mit großer Liegefläche (2,00 m x 1,20 m) und großräumigem Stauraum unter dem Bett
- Einbauschränke im Eingangs- und Schlafbereich bieten Platz zum Ordnen und Verstauen
- Großer Schreibtisch mit passender Bestuhlung
- Praktische Küchenzeile mit Elektrogeräten (Kühl-Gefrier-Kombination, Herd, Mikrowelle)
- Wohlfühl-Bad mit bodengleicher Dusche
- Lichtkonzept im gesamten Apartment mit energiesparender Beleuchtung
- farblich abgestimmte Vorhänge
- Schallschutztüren für alle Apartments
- Breitband-Internetzugang und WLAN im gesamten Gebäude
Angaben zum Energieausweis
- Baujahr Gebäude und Wärmeerzeuger: 2021
- Energieträger und Heizungsart: Erdgas H, Strom-Mix, Zentralheizung
- Typ: Bedarfsausweis
- Energiekennwert: 29,6 kWh/(m²*a)
- Energieeffizienzklasse: A
- Energieausweis gültig bis: 05.08.2031